
Với mong muốn mang đến nhiều không gian nội thất đẹp, đội ngũ nhân viên Hoàng Nhất Phương luôn học hỏi những kinh nghiệm về nội thất mới nhất. Mới đây, chúng tôi đã cho ra đời kiệt tác thiết kế biệt thự đẹp ở khu vực Quận 7 thành phố Hồ Chí Minh. Sau đây là những chi tiết cụ thể về thiết kế nội thất biệt thựu Lavila Kiến Á.
- Vị trí: Biệt thự nằm ở H.Nhà bè, TP.Hồ chí Minh
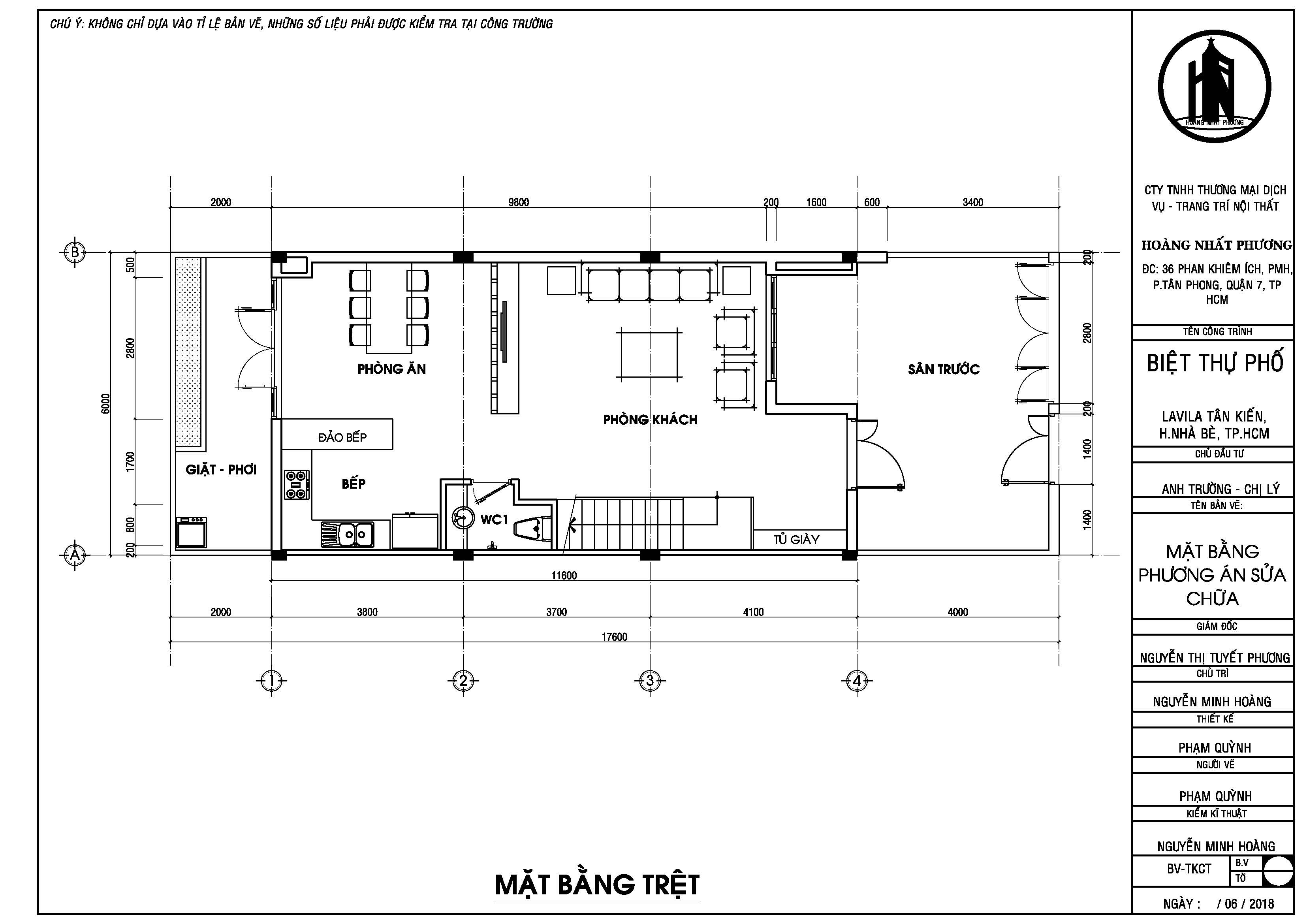
- Chủ đầu tư: Anh Trường - Chị Lý
- Diện tích Xây dựng là 6x17.6m2 với Phòng khách + ăn + bếp : 70m2, Phòng ngủ 01 (26 m2), Phòng ngủ 02 (22 m2), Phòng ngủ 03 (14 m2) và phòng SHC phòng thờ (41 m2)
- Mô hình: Thiết kế nội thất biệt thự theo tiêu chuẩn hiện đại
- Tổng quát mô hình thiết kế: 3 phòng ngủ, 3 WC, 1 phòng khách, phòng ăn, nhà vệ sinh và phòng thờ
- Căn Biệt thự được xây dựng rất tinh tế cùng với thiết kế nội thất không gian bên trong theo phong cách hiện đại. Đây là phong cách thiết kế nội thất biệt thự hạng sang, bắt mắt, tiện dụng,..Với gam màu trắng chủ đạo, điểm vào đó các sắc thái nhẹ của gỗ cho không gian nhà đẹp mắt và hài hòa hơn, tạo nên sự trang nhã cho ngôi nhà của bạn.



Cùng điểm qua những không gian thiết kế nội thất nhà đẹp mà Hoàng Nhất Phương đã hoàn thành nhé!
Thiết kế nội thất Phòng khách, bếp và phòng ăn theo phong cách hiện đại và sang trọng, không cầu kỳ về đường nét trang trí nhưng lại có màu sắc hài hòa, mang lại không gian sinh hoạt chung trọn vẹn cho cả gia đình. Có lợi thế chiều ngang rộng, nên phòng khách, bếp và phòng ăn được kết hợp thông nhau 1 cách hài hòa, bố trí chặt chẽ với nhau tạo cảm giác rộng lớn và dễ dàng di chuyển.



Thiết kế nội thất Phòng khách được bố trí đầy đủ tiện nghi, sử dụng màu gỗ trầm sang trọng và gam màu trắng chủ đạo, vách sofa được trang trí kiếng đen vừa sang trọng lại vừa dễ lau chùi.

Giữa phòng khách và phòng ăn được bố trí vách ngăn gỗ nhẹ với nhiều công dụng: vừa là kệ tivi, vừa là vách trang trí

Nhà bếp được thiết kế hình chữ U nhỏ gọn nhưng tiện nghi. Có 2 dàn tủ bếp trên và tủ bếp dưới thỏa sức chứa vật dụng, phía đối diện có 1 quầy bar nhỏ để thức ăn sau khi nấu và cũng có thể làm bàn ăn mini


Thiết kế nội thất biệt thự Lavila Kiến Á Nhà bè cho không gian phòng ngủ 1
Thiết kế nội thất phòng ngủ master theo phong cách hiện đại, rộng rãi và sang trọng đáp ứng được nhu cầu của gia chủ. Phòng ngủ master được nội thất Gam màu nâu lịch lãm được nhấn chính bởi vách giường làm bằng kiếng giả gạch cùng những bức tranh treo tường, hệ thống đèn trang trí, … thổi cho không gian màu sắc ấm áp và sang trọng






Thiết kế nội thất biệt thự Lavila Kiến Á Nhà bè cho không gian phòng ngủ 2
Thiết kế nội thất phòng ngủ 2 cũng với gam màu nâu mang lại sự tao nhã cho không gian sống. Vách trang trí đầu giường và tranh tường đều là những điểm nhấn đắt giá mang đến một không gian hài hòa





Thiết kế nội thất phòng ngủ 3 đơn giản nhưng không kém phần tinh tế. Nổi bật là mảng đầu giường với chất liệu Gương đen nhấn nhẹ 2 bên điểm xuyến cho toàn bộ không gian phòng




Thiết kế nội thất biệt thự Lavila Kiến Á Nhà bè cho không gian phòng sinh hoạt chung và phòng thờ
Biệt thự Lavila được trang bị thêm 1 phòng SHC và phòng thờ trên lầu, mục đích là để thờ cúng trên cao tránh va chạm các phòng khác. Phòng thờ này cũng được tận dụng để làm thêm phòng SHC đơn giản trên lầu


Đó là toàn bộ Thiết kế nội thất biệt thự Lavila Kiến Á Nhà bè được bàn tay của đội ngũ nhân viên Hoàng Nhất Phương thi công. Nếu bạn muốn được tư vấn thiết kế nội thất biệt thự, chung cư, căn hộ, nhà ở,… thì hãy liên hệ ngay với chúng tôi.
Hotline: 0902 71 5858