Địa chỉ: 36 đường số 9, KDC Nine South, Phước Kiển, Nhà Bè
Chủ đầu tư: HUỲNH VĂN PHƯƠNG
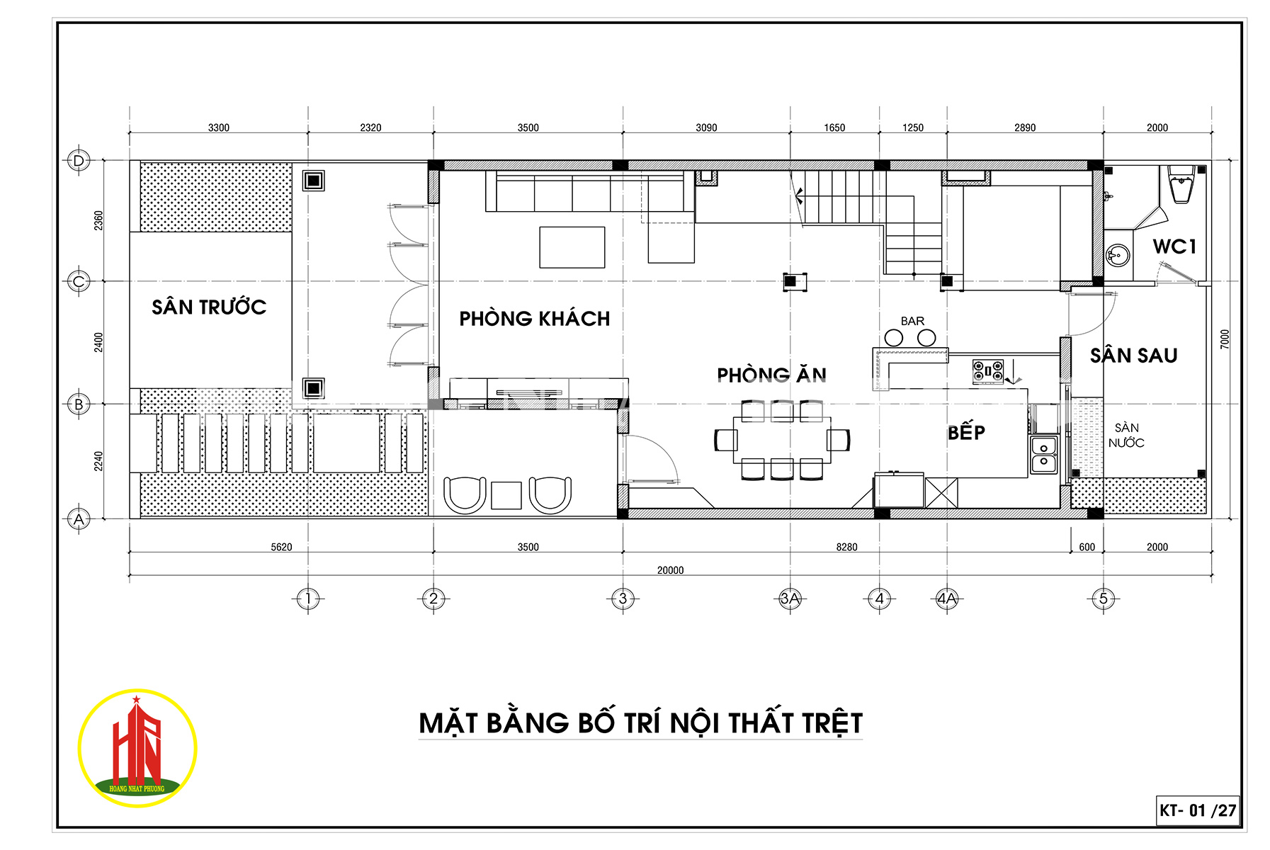
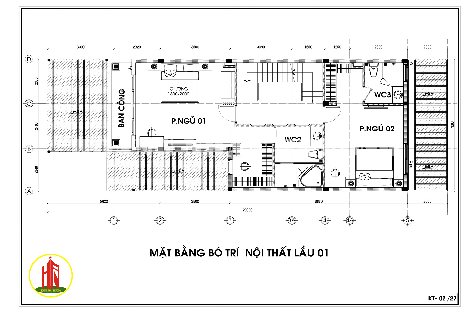
Quy mô: 1 trệt 2 lầu (phòng khách, bếp, phòng ăn, 5 phòng ngủ và 5 wc)





Thiết kế nội thất Phòng khách, bếp và phòng ăn theo phong cách hiện đại và sang trọng, không cầu kỳ về đường nét trang trí nhưng lại có màu sắc hài hòa, sử dụng 2 gam màu trắng và nâu của gỗ mang lại không gian sinh hoạt chung trọn vẹn cho cả gia đình. Có lợi thế chiều ngang rộng, nên phòng khách, bếp và phòng ăn được kết hợp thông nhau 1 cách hài hòa, bố trí chặt chẽ với nhau tạo cảm giác rộng lớn và dễ dàng di chuyển.
Vách sofa được dựng kết hợp giữa đá vân marbel và vách gỗ tạo điểm nhấn cho cả ngôi nhà, Gầm cầu thang được tận dụng để làm tủ bày trí rượu cùng hệ thống đèn hắt sáng làm cho thiết kế cả biệt thự thêm lung linh và đẳng cấp



Phòng khách liên thông với nhà bếp và phòng ăn tạo nên không gian rộng lớn và bao quát mắt nhìn. Bếp hình chữ U rộng rãi kết hợp quầy bar 1 cách hợp lý, bàn ăn được bố trí sát bên giúp việc nấu nướng và dọn thức ăn thuận tiện





Phòng ngủ gia chủ được thiết kế nội thất theo phong cách đơn giản nhưng sang trọng chỉ sử dụng 2 tông màu đối lập trắng và nâu, vách đầu giường sử dụng giấy dán tường kết hợp phào chỉ vàng kim loai độc đáo mà sang trọng



Thiết kế nội thất biệt thự Nine South - Phòng ngủ 2
Thiết kế nội thất phòng ngủ 2 theo xu hướng trẻ trung dành cho bé gái, vách đầu giường hình ngôi nhà là điểm nhấn cho toàn bộ nội thất căn phòng


Thiết kế nội thất phòng ngủ 3 có nét tương đồng với phòng ngủ master nhưng có phần đơn giản hơn với vách đầu giường trang trí nhẹ kết hợp cùng giấy dán tường và tranh trang trí


Thiết kế nội thất phòng ngủ 4 cũng với gam màu nâu mang lại sự tao nhã cho không gian sống. Không gian tuy nhỏ nhưng rất đầy đủ các vật dụng cần thiết như tủ đầu giường 2 bên, bàn làm việc, kệ tivi và tủ áo âm tường kịch trần



Thiết kế nội thất phòng ngủ 5 theo xu hướng vui nhộn dành cho bé trai, sử dụng tông màu xanh biển tươi mới xuyên suốt các sản phẩm gỗ, giấy dán tường và tranh trang trí làm cho cả căn phòng bừng bừng sức sống
l


Thiết kế nội thất Nine South - Nhà vệ sinh
Biệt thự Nine South có 5 nhà vệ sinh được thiết kế nội thất như khách sạn sang trọng với lavabo và tủ bề mặt đá hoa cương, phòng tắm kiếng và bồn tắm, đá trang trí được ốp kịch tường




Đó là toàn bộ Thiết kế nội thất biệt thự Vĩnh long được bàn tay của đội ngũ nhân viên Hoàng Nhất Phương thi công. Nếu bạn muốn được tư vấn thiết kế nội thất biệt thự, chung cư, căn hộ, nhà ở,… thì hãy liên hệ ngay với chúng tôi.
Hotline: 0902 71 5858