THIẾT KẾ NỘI THẤT NHÀ PHỐ NGUYỄN TRÃI QUẬN 5 - CÓ THANG MÁY (TÂN CỔ ĐIỂN)

THIẾT KẾ NỘI THẤT NHÀ PHỐ NGUYỄN TRÃI QUẬN 5 - CÓ THANG MÁY (TÂN CỔ ĐIỂN)

Thiết kế nội thất nhà phố Nguyễn Trãi là sự pha trộn tinh tế giữa phong cách hiện đại và tân cổ điển, thiết kế nội thất nhà sử dụng gam màu trắng tinh khiết làm chủ đạo kết hợp với nhiều tông gỗ khác nhau để tạo nên những không gian riêng biệt..Nhà phố bao gồm thang máy thuận tiện cho việc di chuyển. Tất cả như hòa quyện vào một để tạo nên một thiết kế đẳng cấp, tiện nghi và thời thượng. Tổng thể thiết kế nội thất nhà phố được chia làm 6 lầu, tầng trệt gồm shop bán hàng, phòng khách, bếp, 4 phòng ngủ với 4 phong cách khác nhau và sân thượng

 

 

 

 

Địa chỉ: 355 Nguyễn Trãi, Phường 7, Quận 5
Chủ đầu tư: Trương Mỹ Vân
Diện tích: 3.7 x13.45m

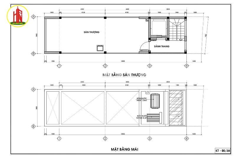
Quy mô: 1 trệt, 1 lửng, 4 lầu và 1 sân thượng

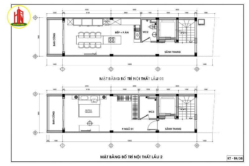
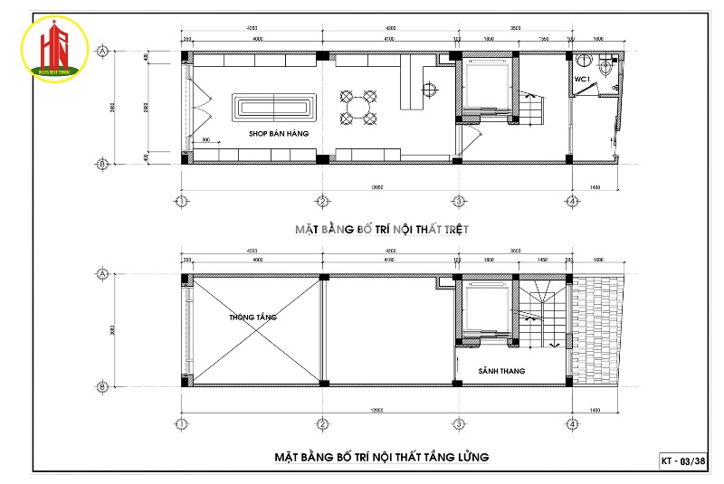
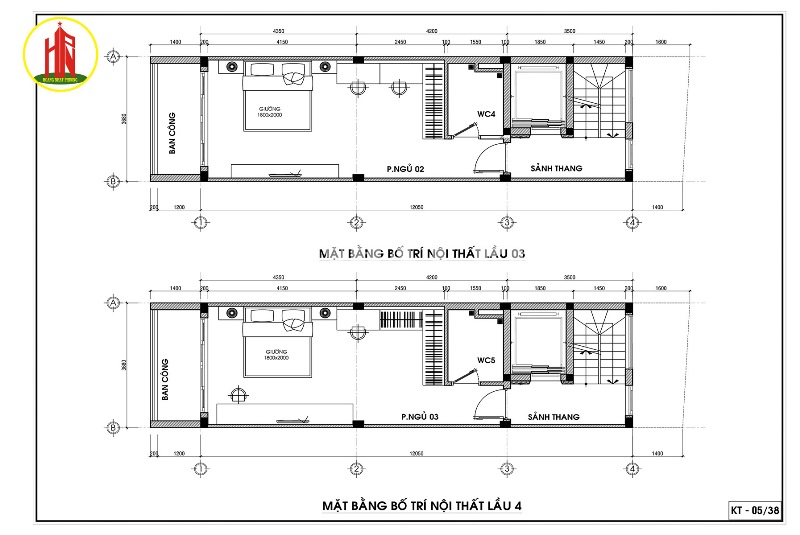
 Mặt bằng bố trí nội thất nhà phố Nguyễn Trãi

 

 

 

 


 Thiết kế nội thất nhà phố Nguyễn Trãi -Tầng trệt

Tầng trệt được sử dụng làm shop Thời trang trẻ em với phong cách thiết kế nội thất hiện đại, màu cam pastel được sử dụng làm tông màu chính thể hiện được sự nhẹ nhàng và ngọt ngào, chất liệu chính trong thiết kế nội thất sử dụng chủ yếu là gỗ, kết hợp cùng hệ thống ánh sáng và chỉ vàng óng ánh xuyên suốt thiết kế làm nổi bật sự sang trọng của cả thiết kế shop

 

t

 

 

 

 

Thiết kế nội thất nhà phố Nguyễn Trãi - Bếp, phòng ăn

Không gian bếp và phòng ăn được thiết kế chữ L kết hợp đảo bếp. Thiết kế nội thất nhà bếp sử dụng chất liệu gỗ bền bỉ, màu trắng làm chủ đảo phối cùng đá tự nhiên màu kem, màu sắc hài hoà làm không gian bếp vừa sang trọng, nhã nhặn lại sạch sẽ.

Thiết kế nội thất nhà bếp kịch trần tận dụng tối đa không gian và phức hợp lò nướng điện âm, bồn rửa chén, tủ lạnh, máy hút, tủ úp chén, tủ rượu và bàn thờ ông táo tạo nên 1 bộ tủ bếp đa năng không chỉ dùng để nấu nướng. Đảo bếp được bố trí như 1 bàn ăn kết hợp giúp tiết kiệm thời gian lên món ăn

 

 

 

 

 

Khu vực thang bộ và thang máy được đặt cạnh nhau về cuối nhà

 

 

 

Thiết kế nội thất nhà phố Nguyễn Trãi - Phòng ngủ 1 

Phòng ngủ gia chủ được thiết kế nội thất theo phong cách Tân cổ điển. Trong thiết kế này chúng tôi hạn chế sự xuất hiện của những màu sắc sặc sỡ, vì thế màu sắc chủ đạo là màu trắng sang trọng. Phong cách tân cổ điển vẫn nhấn mạnh vào bức tường, các đường phào chỉ, những đường cong trong sản phẩm gỗ nhưng đã lược bỏ các chi tiết hoa văn cầu kỳ của thiết kế cổ điển, kết hợp cùng phong cách thiết kế hiện đại như kiếng trang trí, giấy dán tường, tranh.... tạo nên không gian đẳng cấp nhưng nhẹ nhàng mềm mại cho tổ ấm của bạn

 

 

 

 

 


 

Thiết kế nội thất nhà phố Nguyễn trãi - Phòng ngủ 2 

Thiết kế nội thất phòng ngủ 2 theo phong cách hiện đại kết hợp ăn ý giữa 2 màu gỗ nâu trầm và cam pastel ngọt ngào. Dán sàn và vách trang trí đầu giường dùng tông nâu trầm tạo cảm giác sang trọng, cứng rắn, hoà trộn cùng các mảng tường màu cam pastel nhẹ nhàng tạo nên không gian vừa đẳng cấp lại trầm ấm. Đồ nội thất được thiết kế  tối giản khi sử dụng tủ treo như bàn phấn, bàn làm việc, tủ đầu giường  và kệ tivi ..giúp căn phòng thêm hiện đại lại dễ quét dọn.  Tủ áo lùa âm vào tường, tận dụng không gian trần để chứa đồ vật ít sử dụng 

 

 

 

 

 

Thiết kế nội thất nhà phố Nguyễn Trãi - Phòng ngủ 3

Thiết kế nội thất phòng ngủ 3 phá cách một chút khi sử dụng gam màu xanh ngọc trong toàn bộ thiết kế căn phòng, nhìn vào thì đây là một không gian hoàn toàn tách biệt với tổng thể thiết kế nội thất nhà phố bên ngoài, các mảng tường xanh ngọc kết hợp cùng các sản phẩm gỗ màu trắng,nhấn nhá màu xanh của biển khơi, màu của cỏ cây tuơi mới cùng ánh nắng phản chiếu vào phòng tạo nên 1 không gian đầy sức sống

 

 

 

 

 

Thiết kế nội thất nhà phố Nguyễn Trãi - Nhà vệ sinh
Dưới đây là 3 Thiết kế nội thất wc của nhà phố, nhà vệ sinh sử dụng chất liệu đá màu tối ốp toàn bộ không gian kết hợp cùng các thiết bị vệ sinh trắng tạo nên không gian sạch sẽ và sang trọng


 

 

 

 

 

 

 

 

Đó là toàn bộ Thiết kế nội thất nhà phố Nguyễn Trãi Quận 5 được bàn tay của đội ngũ nhân viên Hoàng Nhất Phương thi công. Nếu bạn muốn được tư vấn thiết kế nội thất biệt thự, chung cư, căn hộ, nhà ở,… thì hãy liên hệ ngay với chúng tôi.

MIỄN 100% CHI PHÍ THIẾT KẾ NỘI THẤT NHÀ PHỐ - BIỆT THỰ 

 

Hotline: 0902 71 5858 




 

Thiết kế liên quan

0902 71 5858