Thiết kế nội thất chung cư đẹp sẽ mang đến kiến trúc không gian sang trọng, thể hiện đẳng cấp cho từng gia chủ. Với ý tưởng thiết kế nội thất căn hộ Saigon South Residences A12.A10 này chắc chắn sẽ làm hài lòng vị khách khó tính nhất. Đội ngũ kỹ sư nội thất Hoàng Nhất Phương đã nghiên cứu cẩn thận, tỉ mỉ từng chi tiết để mang đến căn hộ hoàn hảo nhất. Cùng tham khảo chi tiết bên dưới nhé!

Vị trí căn hộ: Saigon South Residences Phú Mỹ Hưng Quận 7
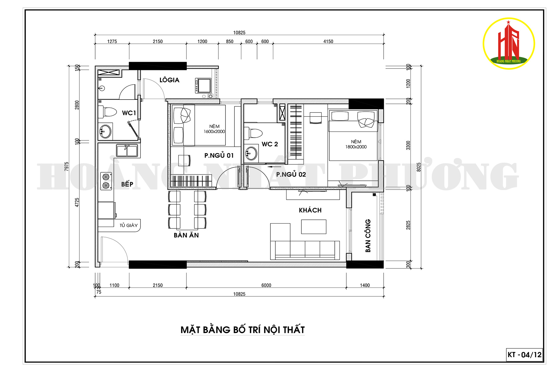
Thiết kế căn hộ bao gồm: 2 phòng ngủ, 2 phòng WC, 1 phòng khách, 1 phòng ăn, bếp, nơi giặt phơi đồ, ban công, cùng 1 số tiện ích khác.

Dưới bàn tay vàng của đội ngũ kỹ sư thiết kế nội thất Hoàng Nhất Phương, căn hộ này được sắp xếp một cách khoa học và đảm bảo tính thẩm mỹ. Từ việc bố trí cho đến sắc màu được lựa chọn một cách kỹ lưỡng. Cùng điểm qua từng không gian bên dưới nhé!
Dưới đây là một số hình ảnh nội thất căn hộ:
Nhìn chung thiết kế nội thất nhà đẹp thì phòng khách là điểm chú ý nhiều nhất. Chính vì thế, chúng tôi đã tạo nên sự khác biệt cho không gian này. Các sản phẩm phục vụ nhu cầu người tiêu dùng được bố trí một cách khoa học, tiện nghi. Nội thất không gian phòng khách được thiết kế theo phong cách tân Cổ Điển nên chắc chắn sẽ mang đến không gian sang trọng nhất cho gia chủ. Trong thiết kế này chúng tôi hạn chế sự xuất hiện của những màu sắc sặc sỡ, vì thế màu sắc chủ đạo là màu trắng kem nhã nhặn. Phong cách tân cổ điển vẫn nhấn mạnh vào bức tường, các đường phào chỉ trong sản phẩm gỗ nhưng đã lược bỏ các chi tiết hoa văn cầu kỳ của thiết kế cổ điển, kết hợp cùng phong cách thiết kế hiện đại như đèn trang trí, giấy dán tường, tranh.... tạo nên không gian đẳng cấp nhưng nhẹ nhàng mềm mại cho tổ ấm của bạn



Thiết kế nội thất nhà bếp, phòng ăn và phòng khách được liên thông với nhau, tạo nên không gian mở rộng rãi. Nhà bếp hình chữ U kết hợp quầy bar bố trí gắn kết mang đến sự thuận tiện cho gia đình. Tủ bếp tích hợp đa năng bếp, bồn rửa chén, tủ lạnh, tủ úp chén, lò nướng, quầy bar.....và Hệ thống tủ bếp kịch trần phối 2 màu trên dưới tạo nên nét đẹp riêng cho không gian nấu nướng, .Phòng ăn đẹp chỉ khi thiết kế tủ bếp đẹp và và thiết kế bàn ăn trang trọng, điều này sẽ giúp bạn cảm thấy bữa cơm của mình ngon miệng hơn cùng bên gia đình.



- Căn hộ được trang bị 2 phòng ngủ tiện nghi, chắc chắn sẽ mang đến cho gia đình bạn một tổ ấm trọn vẹn nhất có thể.
- Thiết kế nội thất phòng ngủ theo phong cách Tân cổ điển được trang bị với gam màu sáng rất bắt mắt, tông trắng là chủ đạo, các vật dụng nội thất giường ngủ, bàn trang điểm, tủ kệ, sofa...được thiết kế cùng phong cách chạm chỗ, các nút nhấn và chỉ chạy cổ điển tạo nên không gian quý phái và ấm áp cho phòng ngủ master
- Thiết kế nội thất phòng ngủ như 1 phòng khách sạn hiện đại với tông màu gỗ xám xanh mạnh mẽ. Một bộ giường được kê sát cửa sổ, phía dưới giường là bộ tủ nhiều ngăn và tủ đầu giường, phía trên giường là kệ tivi và kệ trang trí, tất cả nằm gọn 1 bên phòng. Bên cạnh giường là bàn trang điểm, 1 tủ áo âm tường đụng trần tích hợp tủ sưu tầm túi xách vừa tiết kiệm diện tích và làm căn phòng trở nên gọn gàng. Bên trong phòng có 1 nhà vệ sinh tiện nghi




Đó là toàn bộ thông tin cũng như hình ảnh cụ thể về thiết kế nội thất căn hộ Scenic Valley A11.05- 133.4M2 . Nếu quý khách hàng cần tư vấn hay muốn biết giá cụ thể về thiết kế nội thất thì hãy để Hoàng Nhất Phương giúp bạn.
MIỄN 100% CHI PHÍ THIẾT KẾ NỘI THẤT CĂN HỘ
Hotline: 0902 71 5858