Thiết kế nội thất chung cư đẹp sẽ mang đến kiến trúc không gian sang trọng, thể hiện đẳng cấp cho từng gia chủ. Với ý tưởng thiết kế nội thất căn hộ Scenic Valley A11.05 này chắc chắn sẽ làm hài lòng vị khách khó tính nhất. Đội ngũ kỹ sư nội thất Hoàng Nhất Phương đã nghiên cứu cẩn thận, tỉ mỉ từng chi tiết để mang đến căn hộ hoàn hảo nhất. Cùng tham khảo chi tiết bên dưới nhé!


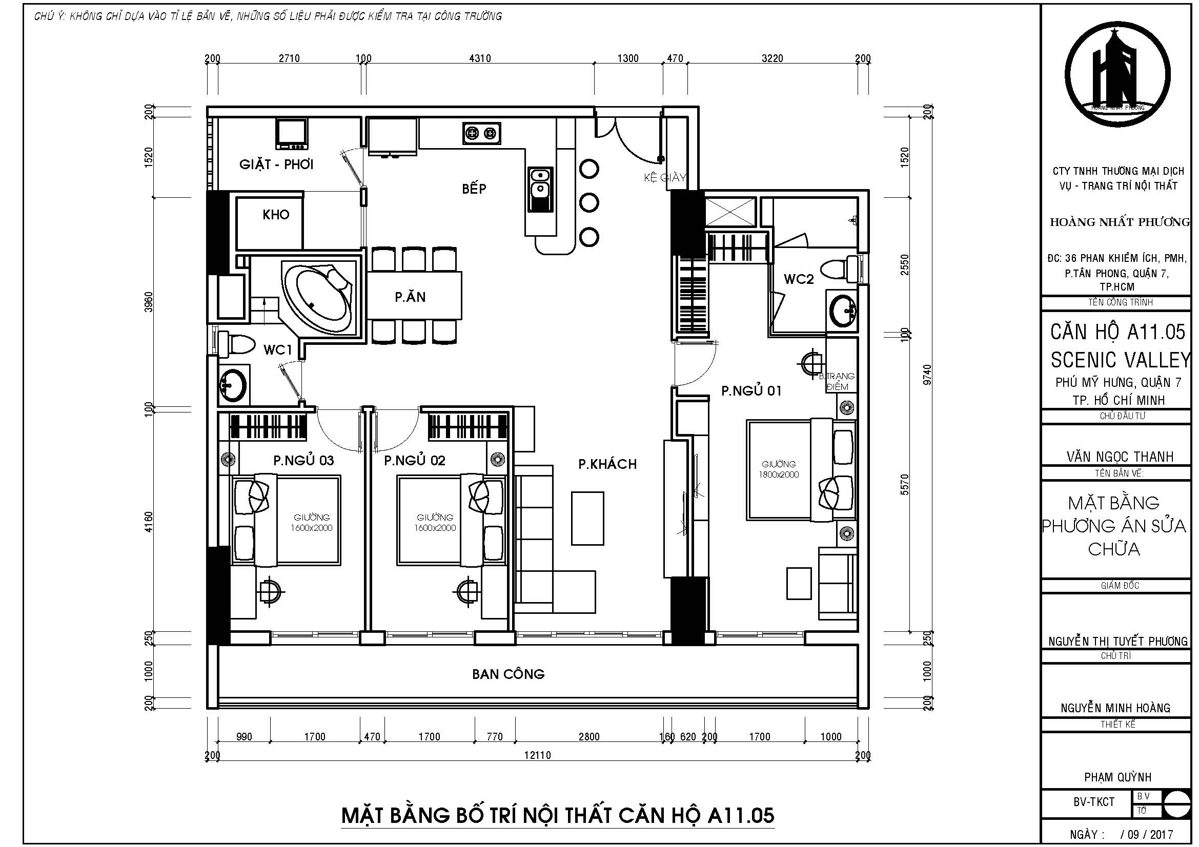
Vị trí căn hộ: Scenic Valley Phú Mỹ Hưng Quận 7
Thiết kế căn hộ bao gồm: 3 phòng ngủ, 2 phòng WC, 1 phòng khách, 1 phòng ăn, bếp, nơi giặt phơi đồ, ban công, cùng 1 số tiện ích khác.

Dưới bàn tay vàng của đội ngũ kỹ sư thiết kế nội thất Hoàng Nhất Phương, căn hộ này được sắp xếp một cách khoa học và đảm bảo tính thẩm mỹ. Từ việc bố trí cho đến sắc màu được lựa chọn một cách kỹ lưỡng. Cùng điểm qua từng không gian bên dưới nhé!
Dưới đây là một số hình ảnh nội thất căn hộ:
Nhìn chung thiết kế nội thất nhà đẹp thì phòng khách là điểm chú ý nhiều nhất. Chính vì thế, chúng tôi đã tạo nên sự khác biệt cho không gian này. Các sản phẩm phục vụ nhu cầu người tiêu dùng được bố trí một cách khoa học, tiện nghi. Nội thất không gian phòng khách được thiết kế theo phong cách tân Cổ Điển nên chắc chắn sẽ mang đến không gian sang trọng nhất cho gia chủ. Bên cạnh đó tông màu trắng được phân bố hài hòa, nhấn nhá giấy dán tường cùng vách gạch, cây cảnh, tranh treo, đèn pha lê hợp lý tạo nên không gian trang trọng và ấm áp nhìn là thích ngay từ đầu.


Thiết kế nội thất nhà bếp, phòng ăn và phòng khách được liên thông với nhau, tạo nên không gian mở rộng rãi. Nhà bếp kết hợp quầy bar bố trí gắn kết mang đến không gian sang chảnh cho gia đình và sự tiện nghi nhất định. Phòng ăn đẹp chỉ khi thiết kế tủ bếp đẹp và và thiết kế bàn ăn trang trọng, điều này sẽ giúp bạn cảm thấy bữa cơm của mình ngon miệng hơn cùng bên gia đình.


- Căn hộ được trang bị 3 phòng ngủ tiện nghi, chắc chắn sẽ mang đến cho gia đình bạn một tổ ấm trọn vẹn nhất có thể.
- Thiết kế nội thất phòng ngủ 1 theo phong cách cổ điển được trang bị với gam màu sáng rất bắt mắt, tông trắng là chủ đạo, các vật dụng nội thất giường ngủ, bàn trang điểm, tủ kệ, sofa...được thiết kế cùng phong cách chạm chỗ, các nút nhấn và chỉ chạy cổ điển tạo nên không gian quý phái và ấm áp cho phòng ngủ master



Thiết kế nội thất phòng ngủ số 2 tuy nhỏ hơn phòng ngủ 1 nhưng sử dụng cùng phong cách cổ điển, tuy nhiên không gian phòng ngủ 2 có phần hiện đại khi sử dụng kiếng để trang trí, vừa hiện đại lại tạo cảm giác không gian rộng hơn.



Thiết kế nội thất phòng ngủ số 3 được thiết kế trẻ trung hơn và màu sắc đậm đà hơn, điều này tạo nên sự khác biệt cho từng căn phòng.



Thiết kế nội thất căn hộ Scenic Valley A11.05 - WC
Căn hộ được bố trí 2 nhà WC, điều này giúp bạn thuận tiện trong sinh hoạt gia đình. Với không gian nhỏ nhưng tiện nghi nhà tắm được bố trí đầy đủ, bạn tha hồ sinh hoạt mà chẳng phải sợ thiếu.


Đó là toàn bộ thông tin cũng như hình ảnh cụ thể về thiết kế nội thất căn hộ Scenic Valley A11.05- 133.4M2 . Nếu quý khách hàng cần tư vấn hay muốn biết giá cụ thể về thiết kế nội thất thì hãy để Hoàng Nhất Phương giúp bạn.
MIỄN 100% CHI PHÍ THIẾT KẾ NỘI THẤT CĂN HỘ
Hotline: 0902 71 5858