THIẾT KẾ NỘI THẤT BIỆT THỰ CAO CẤP LAVILA KIẾN Á NHÀ BÈ - SỐ 9 ĐƯỜNG SỐ 5

THIẾT KẾ NỘI THẤT BIỆT THỰ CAO CẤP LAVILA KIẾN Á NHÀ BÈ - SỐ 9 ĐƯỜNG SỐ 5

Thiết kế nội thất Biệt thự Lavila Kiến Á mang đậm nét hiện đại, sử dụng gam màu trắng tinh khiết xuyên suốt kết hợp với tông màu nâu trầm sang trọng thanh lịch của gỗ. Nếu những căn nhà phố cổ điển mang lại cho các gia đình một vẻ đẹp uy nghi, lộng lẫy đầy mê hoặc thì phong cách hiện đại lại tô điểm cho không gian sống thêm sang trọng và tinh tế . Bằng cách phối màu, bố trí nội thất hợp lý cùng các mảng nhấn nhá, tất cả như hòa quyện vào một để tạo nên một thiết kế nội thất biệt thự Lavila Kiến Á tiện nghi, thời thượng và đẳng cấp. Tổng thể thiết kế nội thất biệt thự Lavila Kiến Á được chia làm 2 lầu  và tầng trệt với sân trước sân sau, phòng khách, ăn, bếp, 3 phòng ngủ, 3wc và phòng sinh hoạt chung trên lầu

 

 

Với mong muốn mang đến nhiều không gian nội thất đẹp, đội ngũ nhân viên Hoàng Nhất Phương luôn học hỏi những kinh nghiệm về nội thất mới nhất. Mới đây, chúng tôi đã cho ra đời kiệt tác thiết kế biệt thự đẹp ở khu vực Quận 7 thành phố Hồ Chí Minh. Sau đây là những chi tiết cụ thể về thiết kế nội thất biệt thựu Lavila Kiến Á.

 

Tổng quan về thiết kế nội thất biệt thự Lavila Kiến Á Nhà bè

- Vị trí: Số 9 đường số 5, KDC LAVILA, Phước Kiển, Nhà bè, TP.Hồ chí Minh

- Chủ đầu tư: Nguyễn Văn Hữu

- Mô hình: Thiết kế nội thất biệt thự theo tiêu chuẩn hiện đại

- Tổng quát mô hình thiết kế: 3 phòng ngủ, 3 WC, 1 phòng khách, phòng ăn, nhà vệ sinh

- Căn Biệt thự được xây dựng rất tinh tế cùng với thiết kế nội thất không gian bên trong theo phong cách hiện đại. Đây là phong cách thiết kế nội thất biệt thự hạng sang, bắt mắt, tiện dụng,..Với gam màu trắng chủ đạo, điểm vào đó các sắc thái nhẹ của gỗ cho không gian nhà đẹp mắt và hài hòa hơn, tạo nên sự trang nhã cho ngôi nhà của bạn.

 

Cùng điểm qua những không gian thiết kế nội thất nhà đẹp mà Hoàng Nhất Phương đã hoàn thành nhé!

 

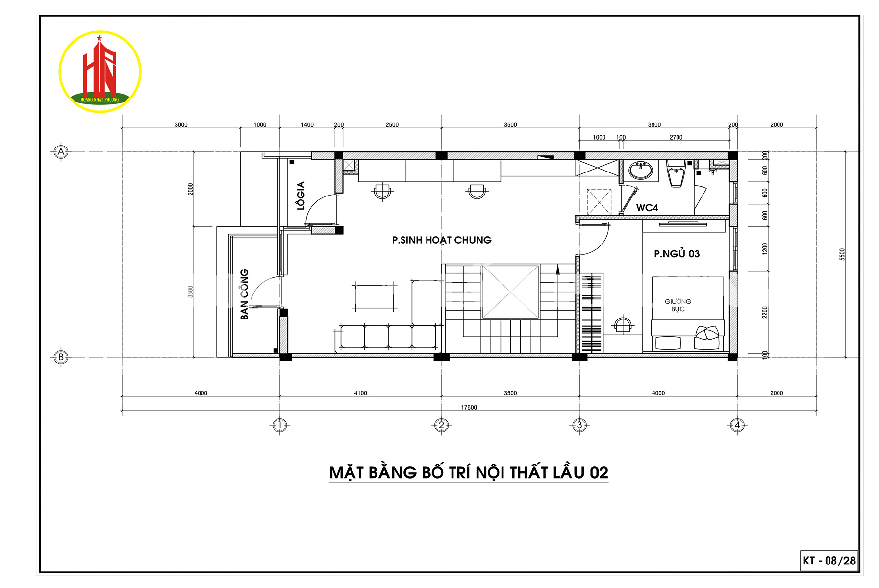
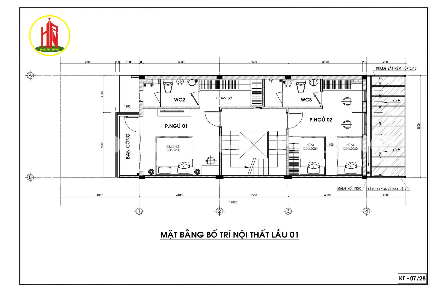
Mặt bằng thiết kế nội thất biệt thự Lavila Kiến Á Nhà bè

 

 

 

 

 

 

Thiết kế nội thất biệt thự Lavila Kiến Á Nhà bè cho không gian phòng khách , bếp và phòng ăn

Thiết kế nội thất Phòng khách, bếp và phòng ăn theo phong cách hiện đại và sang trọng, không cầu kỳ về đường nét trang trí nhưng lại có màu sắc hài hòa, mang lại không gian sinh hoạt chung trọn vẹn cho cả gia đình. Có lợi thế chiều ngang rộng, nên phòng khách, bếp và phòng ăn được thiết kế mở, bố trí chặt chẽ với nhau tạo cảm giác rộng lớn và dễ dàng di chuyển.

 

 

 

 

Thiết kế nội thất Phòng khách được bố trí đầy đủ tiện nghi, sử dụng màu gỗ trầm sang trọng và gam màu trắng chủ đạo, vách sofa được trang trí đá vân marbel vừa sang trọng lại vừa dễ lau chùi. 

 

 

 

Tủ giày được đặt ngay cửa ra vào thuận tiện, hệ thống tủ kịch trần có thể để thêm nhiều vật dụng, thiết kế cửa giúp bảo quản đồ dùng sạch sẽ và cũng có thể làm tù trang trì 

 

 

 

Nhà bếp được thiết kế hình chữ L và bếp đảo nhỏ gọn nhưng tiện nghi. Có 2 dàn tủ bếp trên và tủ bếp dưới thỏa sức chứa vật dụng, phía đối diện có 1 bếp đảo nhỏ để thức ăn sau khi nấu và cũng có thể làm bàn ăn mini

 

 

 

 

 

 

 

Thiết kế nội thất biệt thự Lavila Kiến Á Nhà bè cho không gian phòng ngủ 1

Thiết kế nội thất phòng ngủ master theo phong cách hiện đại và đơn giản đáp ứng nhu cầu của gia chủ. Phòng ngủ master được nội thất Gam màu nâu lịch lãm    với đầy đủ tiện nghi gồm giường, tủ âm tường, kệ tivi, bàn làm việc và 1 nhà vệ sinh tiện nghi  

 

 

 

 

 

Thiết kế nội thất biệt thự Lavila Kiến Á Nhà bè cho không gian phòng ngủ 2

Thiết kế nội thất phòng ngủ 2 theo gam màu xanh pastel trẻ trung. thiết kế nội thất phòng ngủ gồm 2 giường đơn được bố trí thông minh khắc phục điểm yếu về diện tích. Một bộ giường được kê sát vách gắn liền cùng bộ tủ quần áo âm tường, phía dưới giường có thêm bộ tủ nhiều ngăn, tất cả nằm gọn 1 bên phòng

 

 

 

 

 

Thiết kế nội thất biệt thự Lavila Kiến Á Nhà bè cho không gian phòng ngủ 3

Thiết kế nội thất phòng ngủ như 1 phòng khách sạn hiện đại với tông màu gỗ nâu mạnh mẽ. Một bộ giường được kê sát cửa sổ, phía dưới giường là bộ tủ nhiều ngăn, phía trên giường là kệ tivi và kệ trang trí, tất cả nằm gọn 1 bên phòng. Bên cạnh giường là 1 tủ áo âm tường đụng trần tiết kiệm diện tích và làm căn phòng trở nên gọn gàng. Bên trong phòng có 1 nhà vệ sinh tiện nghi

 

 

 

 

Thiết kế nội thất biệt thự Lavila Kiến Á Nhà bè cho không gian vệ sinh

 

 

 

Đó là toàn bộ Thiết kế nội thất biệt thự Lavila Kiến Á Nhà bè được bàn tay của đội ngũ nhân viên Hoàng Nhất Phương thi công. Nếu bạn muốn được tư vấn thiết kế nội thất biệt thự, chung cư, căn hộ, nhà ở,… thì hãy liên hệ ngay với chúng tôi.

MIỄN 100% CHI PHÍ THIẾT KẾ NỘI THẤT NHÀ PHỐ - BIỆT THỰ (Có điều kiện kèm theo)

 

Hotline: 0902 71 5858 

 

Thiết kế liên quan

0902 71 5858