

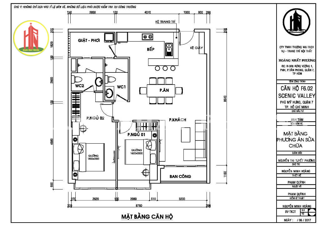
Để có cái nhìn tổng thể về toàn căn hộ thì hãy xem ngay chi tiết thiết kế nội thất căn hộ bên dưới:
Tuy diện tích căn hộ nhỏ nhưng kiến trúc sư cũng đã mang đến 2 phòng ngủ cực rộng cho gia chủ. Nội thất bên trong được thiết kế hài hòa từ màu sắc cho đến kích thước. Tất cả sản phẩm phục vụ tiện nghi được bày bố cực kỳ khoa học.
Màu sắc phòng ngủ được trang trí với những gam màu nhẹ nhàng, dễ chịu. Điểm lên đó là những bức tranh treo trường với gam màu nổi bật làm không gian phòng ngủ sáng hơn.
Sau đây là hình ảnh cụ thể của từng phòng ngủ:
Phòng ngủ 01:





Phòng ngủ 02:





Phòng khách được bố trí bộ ghế sofa tông đen cùng với bàn bằng kính. Đồng thời, tivi được đặt ở vị trí cực kỳ tiện lợi, đảm bảo tính phong thủy cho ngôi nhà. Mặt khác, những bức tranh treo tường xung quanh mang tính nghệ thuật là điểm nhấn để phòng khách nổi bậc hơn.




Phòng khách gần với không gian cửa sổ bên ngoài nên được trang trí thêm rèm cửa rất tiện lợi. Chỉ cần vét màn cửa lên là bạn được ngắm thành phố ồn ào ban ngày và thơ mộng về đêm.







Nghệ thuật mới ở đây đó là tính tiện nghi và tính thẩm mỹ quan cho toàn bộ khu vực nhà bếp. Bạn sẽ bắt gặp ngay hình ảnh thân thuộc khi nhìn vào căn bếp này, đó là sự đoàn tụ của gia đình. Bữa cơm của gia chủ sẽ được đong đầy hơn khi căn bếp diện tích nhỏ nhưng lại được thiết kế gọn gàng, ngăn nắp đầy đủ tiện nghi như thế này. Tủ lạnh, kệ để đồ, tủ bếp, chỗ nấu và rửa được sắp xếp gọn gàn, đảm bảo tính thẩm mỹ quan ngay từ cái nhìn đầu tiên.
Nhà vệ sinh tuy diện tích nhỏ nhưng kiến trúc sư đã bố trí đầy đủ tiện nghi, đảm bảo tính tiện dụng, gọn gàng, sạch sẽ cho gia chủ. Với sắc màu sáng nhìn rất bắt mắt, chắc chắn sẽ làm hài lòng bạn.
Sau đây là không gian nội thất cụ thể của 2 phòng WC
Phòng WC 01:



Phòng WC 02:



Như vậy, thiết kế nội thất căn hộ Scenic Valley F6.02 chẳng khác gì một chung cư cao cấp. Bạn muốn biết giá hay thắc mắc gì về thiết kế, hãy để đội ngũ kỹ sư tài ba của Hoàng Nhất Phương giúp bạn có không gian ấm cúng nhất. Liên hệ ngay với chúng tôi: 0902.71.5858