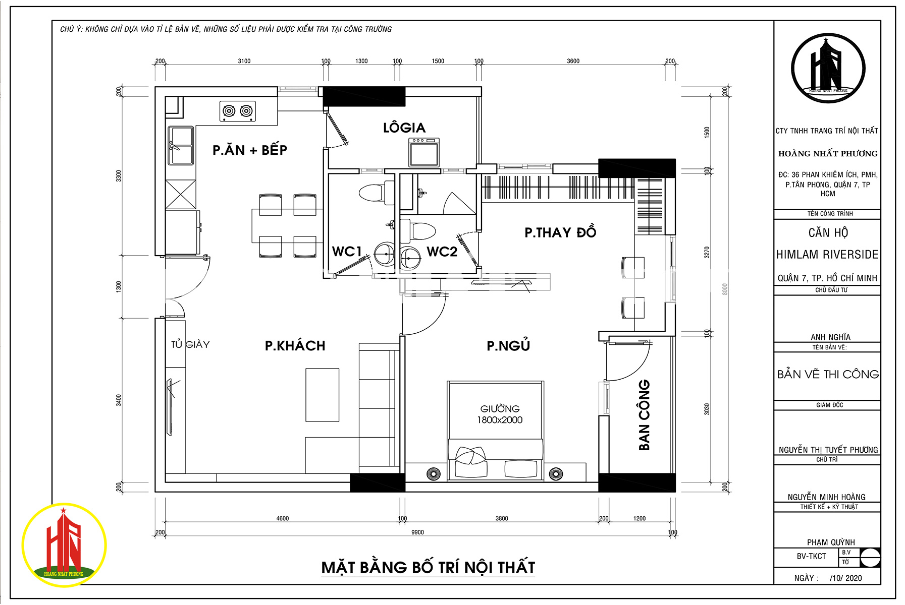
Thiết kế căn hộ bao gồm: 1 phòng ngủ, 2 phòng WC, phòng khách, phòng ăn, bếp, nơi giặt phơi đồ, và ban công
Dưới bàn tay vàng của đội ngũ kỹ sư thiết kế nội thất Hoàng Nhất Phương, căn hộ này được sắp xếp một cách khoa học và đảm bảo tính thẩm mỹ. Từ việc bố trí cho đến sắc màu được lựa chọn một cách kỹ lưỡng. Cùng điểm qua từng không gian bên dưới nhé!
Dưới đây là một số hình ảnh nội thất căn hộ:
Hiện trạng cũ Him Lam Riverside Quận 7
![]()
![]()
![]()
![]()

- Thiết kế nội thất phòng khách vẫn liên thông với phòng ăn quen thuộc tạo không gian mở tinh tế cho căn hộ, 1 bên vách phòng khách sử dụng vách gỗ + kiếng làm điểm nhấn cho căn phòng và 1 bên vách là hê thống tủ kệ kịch trần với 2 bên cửa tủ dùng để chứa đồ, chính giữa là kệ với đèn led dùng để bày trí sách và vật trang trí





- Thiết kế nội thất nhà bếp đơn giản với tông gỗ nâu sang trọng, hệ thống tủ bếp kịch trần tiết kiệm diện tích nhưng đầy đủ thiết bị phục vụ nhu cầu nấu nướng. Bộ bàn ăn đặt gần khu vực bếp giúp việc dọn thức ăn sau khi nấu dễ dàng hơn


- Thiết kế nội thất phòng ngủ Master cũng theo 2 gam màu chính trắng và nâu, với đầy đủ tiện nghi đáp ứng nhu cầu gia chủ gồm giường, tủ âm tường, kệ tivi, kệ trang trí, bàn trang điểm và 1 nhà vệ sinh tiện nghi. Phòng ngủ cực rộng rãi có phòng thay đổ bên trong, hệ thống tủ kiếng âm tường kịch trần rộng lớn đựng được quần áo, túi xách, đồng hồ, trang sức...... Kế bên là bàn làm việc + bàn trang điểm treo đơn giản đón ánh sáng tử cửa sổ bên trên







Đó là toàn bộ thông tin cũng như hình ảnh cụ thể về Thiết kế nội thất Căn hộ Him Lam Riverside Quận 7 . Nếu quý khách hàng cần tư vấn hay muốn biết giá cụ thể về thiết kế nội thất thì hãy để Hoàng Nhất Phương giúp bạn.
MIỄN 100% CHI PHÍ THIẾT KẾ 3D NỘI THẤT CĂN HỘ
Hotline: 0902 71 5858