Thiết kế nội thất chung cư đẹp sẽ mang đến kiến trúc không gian sang trọng, thể hiện đẳng cấp cho từng gia chủ. Với ý tưởng thiết kế nội thất căn hộ The Peak - Midtown Quận 7 này chắc chắn sẽ làm hài lòng vị khách khó tính nhất. Đội ngũ kỹ sư nội thất Hoàng Nhất Phương đã nghiên cứu cẩn thận, tỉ mỉ từng chi tiết để mang đến căn hộ hoàn hảo nhất. Cùng tham khảo chi tiết bên dưới nhé!

Vị trí căn hộ: The Peak - Midtown Phú Mỹ Hưng Quận 7
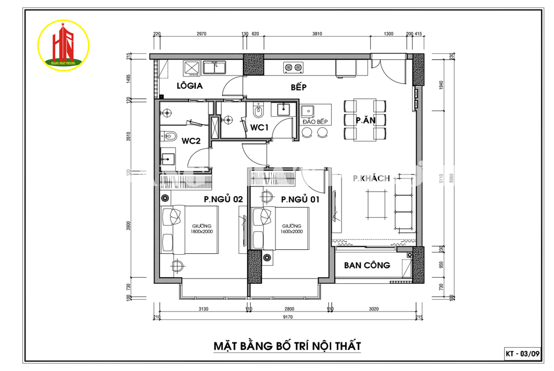
Thiết kế căn hộ bao gồm: 2 phòng ngủ, 2 phòng WC, 1 phòng khách, 1 phòng ăn, bếp, nơi giặt phơi đồ, ban công, cùng 1 số tiện ích khác.
Dưới bàn tay vàng của đội ngũ kỹ sư thiết kế nội thất Hoàng Nhất Phương, căn hộ này được sắp xếp một cách khoa học và đảm bảo tính thẩm mỹ. Từ việc bố trí cho đến sắc màu được lựa chọn một cách kỹ lưỡng. Cùng điểm qua từng không gian bên dưới nhé!
Dưới đây là một số hình ảnh nội thất căn hộ:
- Nhìn chung thiết kế nội thất nhà đẹp thì phòng khách là trái tim của cả căn hộ vì đây là nơi gia chủ tiếp đón người thân và bạn bè. Chính vì thế, chúng tôi đã tạo nên sự khác biệt cho không gian này. Nội thất không gian phòng khách được thiết kế theo phong cách hiện đại, sofa gỗ hình chữ I đối diện là tủ tivi đơn giản nhưng hài hòa. Phòng khách có thiết kế bên cạnh cửa sổ tận dụng tối đa ánh sáng từ bên ngoài kết hợp hệ thống đèn hắc âm trần và 2 bên vách tường sử dụng giấy dán trường và tranh làm điểm nhấn
- Thiết kế nội thất phòng khách căn hộ The Peak Midtown có điểm nhấn là vách kiếng cách điệu cùng hệ thống đèn led hiện đại tạo nên không gian rộng rãi và sáng sủa cho căn hộ




Thiết kế nội thất phòng khách căn hộ The Peak Midtown có phòng ăn tông xám - đen. Bếp hình chữ I 2 tầng kịch trần tạo nên không gian gọn gàng và tiện nghi. Mặt đá bếp sử dụng màu đen có các vân đá màu trắng tạo cảm giác sang trọng và sạch sẽ

Thiết kế nội thất phòng khách căn hộ The Peak Midtown có bàn ăn được bố trí sát bên giúp việc nấu nướng và dọn thức ăn thuận tiện. Bộ ghế được kựa chọn với màu xanh lá nổi bật phối cùng mặt đá marbel đen là điểm nhấn cho không gian




Thiết kế nội thất phòng ngủ căn hộ The Peak Midtown theo phong cách hiện đại tối giản với gam màu xám nhã nhặn . Giường ngủ được thiết kế như ru mình cùng thiên nhiên với vách đầu giường bọc nệm xanh lá đơn giản, đối diện giường là tấm tranh thiên nhiên tạo cảm giác thư giản cho gia chủ. . Tủ áo kịch trần tận dụng tối đa không gian để chứa vật dụng. Bên cạnh cửa số được thiết kế bục đá là nơi lý tưởng để nghỉ ngơi giải trí và quan sát thành phố từ trên cao




Đó là toàn bộ thông tin cũng như hình ảnh cụ thể về thiết kế nội thất căn hộ The Peak - Midtown Quận 7 . Nếu quý khách hàng cần tư vấn hay muốn biết giá cụ thể về thiết kế nội thất thì hãy để Hoàng Nhất Phương giúp bạn.
MIỄN 100% CHI PHÍ THIẾT KẾ NỘI THẤT CĂN HỘ
Hotline: 0902 71 5858