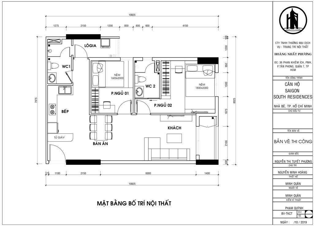
Thiết kế căn hộ bao gồm: 2 phòng ngủ, 2 phòng WC, phòng khách, phòng ăn, bếp, nơi giặt phơi đồ, và ban công
Dưới bàn tay vàng của đội ngũ kỹ sư thiết kế nội thất Hoàng Nhất Phương, căn hộ này được sắp xếp một cách khoa học và đảm bảo tính thẩm mỹ. Từ việc bố trí cho đến sắc màu được lựa chọn một cách kỹ lưỡng. Cùng điểm qua từng không gian bên dưới nhé!
Dưới đây là một số hình ảnh nội thất căn hộ:

- Thiết kế nội thất phòng khách vẫn liên thông với phòng ăn quen thuộc tạo không gian mở tinh tế cho căn hộ, 1 bên phòng khách sử dụng vách kiếng tạo tầm nhìn rộng rãi và 1 bên sử dụng vách gỗ để điểm xuyết cho tivi và kệ


- Thiết kế nội thất nhà bếp đơn giản với tông gỗ nâu sang trọng, hệ thống tủ bếp kịch trần tiết kiệm diện tích nhưng đầy đủ thiết bị phục vụ nhu cầu nấu nướng. Bộ bàn ăn đặt gần khu vực bếp giúp việc dọn thức ăn sau khi nấu dễ dàng hơn


- Thiết kế nội thất phòng ngủ Master cũng theo 2 gam màu chính xám và nâu, với đầy đủ tiện nghi đáp ứng nhu cầu gia chủ gồm giường, tủ âm tường, kệ tivi, kệ trang trí, bàn trang điểm và 1 nhà vệ sinh có phòng tắm đứng tiện nghi





- Thiết kế nội thất phòng ngủ nhỏ được bố trí thông minh khắc phục điểm yếu về diện tích. Một bộ giường được kê sát cửa sổ, phía dưới giường là bộ tủ nhiều ngăn, phía trên giường là kệ tivi, tất cả nằm gọn 1 bên phòng. Bên cạnh giường là 1 tủ áo âm tường kịch trần và 1 bàn làm việc treo tường tiết kiệm diện tích


Đó là toàn bộ thông tin cũng như hình ảnh cụ thể về Thiết kế nội thất Căn hộ Saigon South Residences Quận 7 . Nếu quý khách hàng cần tư vấn hay muốn biết giá cụ thể về thiết kế nội thất thì hãy để Hoàng Nhất Phương giúp bạn.
MIỄN 100% CHI PHÍ THIẾT KẾ 3D NỘI THẤT CĂN HỘ
Hotline: 0902 71 5858