Vị trí căn hộ: SAIGON ROYAL - 36 Bế Vân Đồn, Phường 12, Quận 4, TP.HCM
Chủ đầu tư : Chị Lan Anh
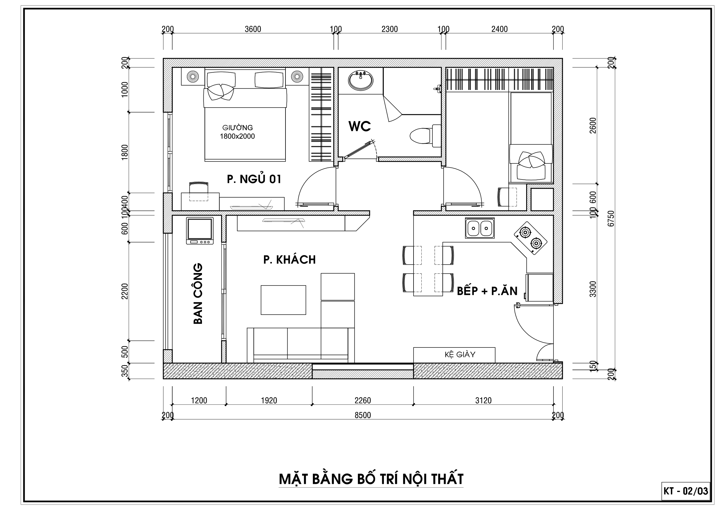
Thiết kế căn hộ bao gồm: 2 phòng ngủ, 1 phòng WC, 1 phòng khách, 1 phòng ăn, bếp, nơi giặt phơi đồ, ban công, cùng 1 số tiện ích khác.
Dưới bàn tay vàng của đội ngũ kỹ sư thiết kế nội thất Hoàng Nhất Phương, căn hộ này được sắp xếp một cách khoa học và đảm bảo tính thẩm mỹ. Từ việc bố trí cho đến sắc màu được lựa chọn một cách kỹ lưỡng. Cùng điểm qua từng không gian bên dưới nhé!
Dưới đây là một số hình ảnh nội thất căn hộ:
Mặt bằng bố trí Căn hộ Saigon Royal

- Thiết kế nội thất nhà đẹp thì phòng khách là điểm chú ý nhiều nhất vì mọi khách đến nhà đều sẽ vào phòng khách đầu tiên. Chính vì thế, không gian này phải thật sự thu hút khi bước vào nhà. Nội thất trang trí phục vụ nhu cầu chủ nhà được bố trí một cách khoa học, tiện nghi và hiện đại.
- Thiết kế nội thất phòng khách được bố trí không gian mở tiết kiệm tối đa diện tích theo thứ tự cửa vào nhà -> bếp -> bàn ăn -> phòng khách -> ban công. Thiết kế nội thất liên thông dùng màu trắng chủ đạo, phối gỗ nâu làm điểm nhấn, giúp toàn bộ không gian trở nên hài hòa, sang trọng và tiện nghi với đầy đủ các đồ nội thất như sofa, kệ tivi, bếp, bàn ăn, quầy bar, kệ giày....Vách kiếng lớn trang trí phòng khách giúp gia tăng không gian thoáng đãng và rộng rãi




- Thiết kế nội thất nhà bếp và phòng ăn sử dụng 3 màu chính là trắng và nâu gỗ. Thiết kế tủ bếp hình chữ U bằng gỗ, mặt đá trắng, tận dụng toàn bộ không gian vừa vặn cho tủ lạnh và lò vi sóng âm vào tủ bếp. Bên hông tủ bếp còn có 1 kệ nhỏ để trang trí. Bàn ăn được thiết kế liền kề tủ bếp, tiết kiệm không gian và tiện cho việc nấu xong ăn liền


Thiết kế nội thất phòng ngủ 1 - Căn hộ Saigon Royal
- Căn hộ được trang bị 2 phòng ngủ tiện nghi, chắc chắn sẽ mang đến cho gia đình bạn một tổ ấm trọn vẹn nhất có thể
- Thiết kế nội thất phòng ngủ 1 theo phong cách hiện đại nhưng vô cùng tối giản với màu gỗ nâu trầm. Dán sàn được dùng tông nâu giúp căn phòng trở nên ấm áp. Tuy nội thất đơn giản nhưng đầy đủ giường, tủ, kệ tivi. Tủ đầu giường và Kệ tivi được thiết kế treo lên tường vừa hiện đại, đơn giản lại dễ quét dọn. Tủ áo lùa âm vào tường, tận dụng không gian trần để chứa đồ vật ít sử dụng


Thiết kế nội thất phòng ngủ 2 - Căn hộ Saigon Royal
Thiết kế nội thất phòng ngủ số 2 cũng theo phong cách hiện đại. Không gian tuy nhỏ nhưng tận dụng tốt không gian tường giúp căn phòng đầy đủ tiện nghi


Đó là toàn bộ thông tin cũng như hình ảnh cụ thể về Thiết kế nội thất Căn hộ Saigon Royal . Nếu quý khách hàng cần tư vấn hay muốn biết giá cụ thể về thiết kế nội thất thì hãy để Hoàng Nhất Phương giúp bạn.
MIỄN 100% CHI PHÍ THIẾT KẾ 3D NỘI THẤT CĂN HỘ
Hotline: 0902 71 5858