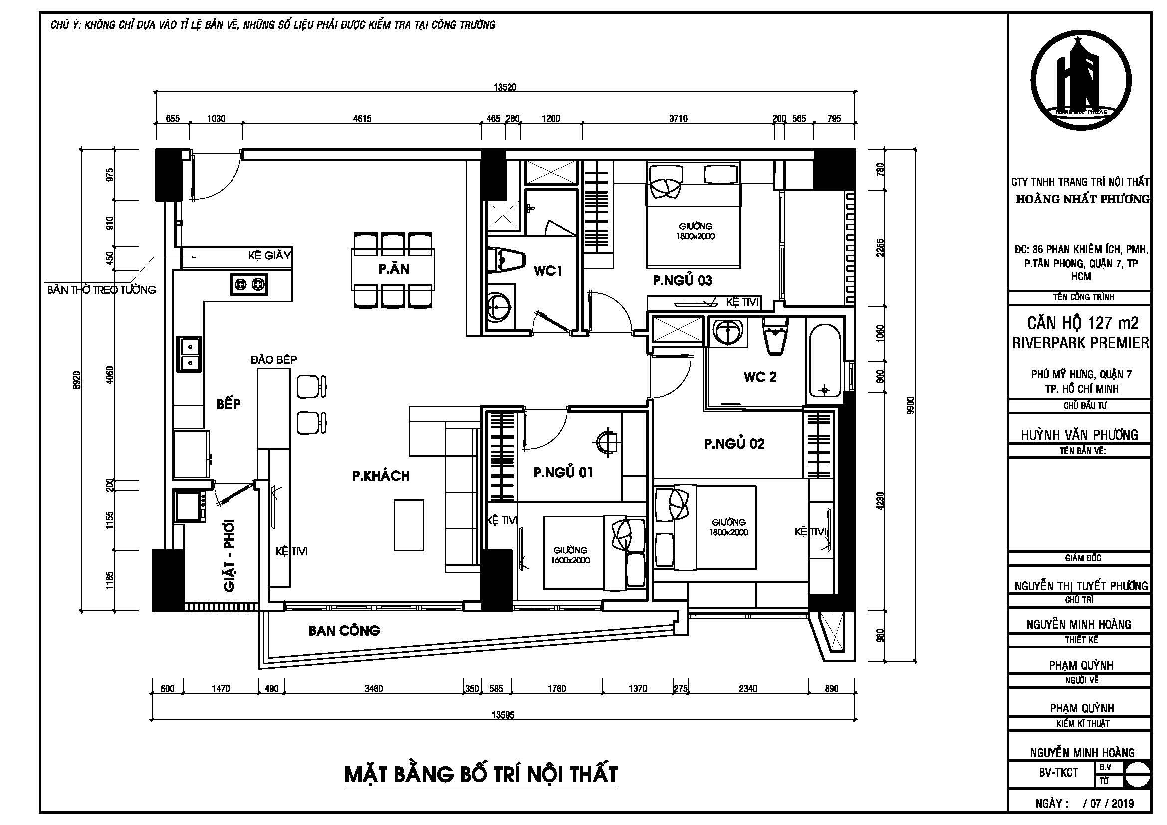
Vị trí căn hộ: RIVERPARK PREMIER - Nguyễn Đức Cảnh, Tân Phong, Quận 7, Hồ Chí Minh
Thiết kế căn hộ bao gồm: 2 phòng ngủ, 2 phòng WC, 1 phòng khách, 1 phòng ăn, bếp, nơi giặt phơi đồ, ban công, cùng 1 số tiện ích khác.
Dưới bàn tay vàng của đội ngũ kỹ sư thiết kế nội thất Hoàng Nhất Phương, căn hộ này được sắp xếp một cách khoa học và đảm bảo tính thẩm mỹ. Từ việc bố trí cho đến sắc màu được lựa chọn một cách kỹ lưỡng. Cùng điểm qua từng không gian bên dưới nhé!
Dưới đây là một số hình ảnh nội thất căn hộ:



- Thiết kế nội thất nhà đẹp thì phòng khách là điểm được đánh giá đầu tiên vì mọi khách đến nhà đều sẽ vào phòng khách trước. Chính vì thế, không gian này phải thật sự thu hút khi bước vào nhà. Thiết kế Nội thất phòng khách bắt mắt, hiện đại không những giúp gia chủ tìm thấy sự tiện nghi khi ở mà còn thể hiện được đẳng cẳp của gia chủ

- Thiết kế nội thất phòng khách được bố trí không gian mở tiết kiệm tối đa diện tích nhưng cực kỳ hiện đại và hợp lý. Phòng khách, phòng ăn, bàn ăn và quầy bar được lồng ghép tinh tế giúp phòng khách như 1 bức tranh hài hòa. Các mảng tường được phân chia 1 bên là tường ốp gỗ, bên còn lại là ốp gạch cùng cách bố trí nội thất sofa, tủ kệ tivi gỗ và ánh đèn tạo nên 1 không gian phòng khách nhẹ nhàng nhưng sang trọng

- Khi mới vào nhà 1 kệ giày lớn cho cả gia đình được thiết kế bắt mắt gồm 2 phần, phần tủ để giày ít dùng và phần dưới để giày mang hằng ngày được thiết kế thêm đèn pha âm đẹp mắt

- Thiết kế nội thất nhà bếp và quầy bar được kết hợp với 2 màu nâu và trắng. Thiết kế tủ bếp hình chữ L bằng gỗ, mặt đá trắng, tận dụng toàn bộ không gian tường để làm tủ bếp âm vừa để trang trí vừa dùng để chứa đồ. Một quầy bar nhỏ được thiết kế liền kề tủ bếp vừa hiện đại vừa thực dụng, quầy bar nhỏ này ngoài dùng để uống rượu còn có thể dùng làm bàn ăn tạm và để thức ăn khi nấu chín



- Căn hộ được trang bị 2 phòng ngủ tiện nghi, chắc chắn sẽ mang đến cho gia đình bạn một tổ ấm trọn vẹn nhất có thể
- Thiết kế nội thất phòng ngủ 1 theo phong cách hiện đại, cả nội thất và dán sàn dùng màu gỗ nâu trầm hiện đại nhưng rất ấm cúng. Thiết kế nội thất phòng ngủ 1 đơn giản nhưng bố trí rất thông mình, Tủ đầu giường, bàn trang điểm và kệ tivi được thiết kế treo lên tường hiện đại lại dễ quét dọn. Tủ áo lớn đụng nóc thiết kế liền kề kệ sách, tận dụng tối đa không gian tường để gia tăng diện tích chứa đồ



- Thiết kế nội thất phòng ngủ 1 được bố trí 1 WC ngay trong phòng tiện nghi gồm phòng tắm kiếng đứng và thiết bị vệ sinh hiện đại. WC phòng ngủ 1 sử dụng gạch ốp đá vừa sạch sẽ dễ lau chùi vừa hiện đại như khách sạn


- Thiết kế nội thất phòng ngủ số 2 theo phong cách hiện đại dành cho người thích gọn gàng và đơn giản. Thiết kế nội thất phòng ngủ số 2 sử dụng 1 bên tường đề làm tủ quần áo, tủ tivi và trang trí âm tường 1 khối liền mạch. Giường ngủ được thiết kế phá cách, thiết kế riêng biệt 1 không gian, trên đó có cả giường, tủ âm phía dưới, sofa thư giản và kệ sách


- Thiết kế nội thất phòng ngủ 2 được bố trí 1 WC ngay trong phòng sử dụng kiếng hoàn toàn, bên trong là bồn tắm nằm và thiết bị vệ sinh hiện đại.



Đó là toàn bộ thông tin cũng như hình ảnh cụ thể về Thiết kế nội thất Căn hộ Riverpark Premier . Nếu quý khách hàng cần tư vấn hay muốn biết giá cụ thể về thiết kế nội thất thì hãy để Hoàng Nhất Phương giúp bạn.
MIỄN 100% CHI PHÍ THIẾT KẾ 3D NỘI THẤT CĂN HỘ
Hotline: 0902 71 5858