
Thiết kế nội thất chung cư đẹp không những mang đến kiến trúc không gian sang trọng, thể hiện đẳng cấp cho gia chủ mà còn giúp tâm trạng vui vẻ hơn sống trong một không gian mình yêu thích. Với ý tưởng thiết kế nội thất căn hộ Nam Phúc Le Jardin này chắc chắn sẽ làm hài lòng vị khách yêu thích sự đơn giản, thanh tao và nhã nhặn. Đội ngũ kỹ sư nội thất Hoàng Nhất Phương đã nghiên cứu cẩn thận, tỉ mỉ từng chi tiết để mang đến căn hộ hoàn hảo nhất. Cùng tham khảo chi tiết bên dưới nhé!

Vị trí căn hộ: Nam Phúc Le Jardin thuộc khu Đô thị Phú Mỹ Hưng, Phường Tân Phú, Quận 7, TP.HCM.
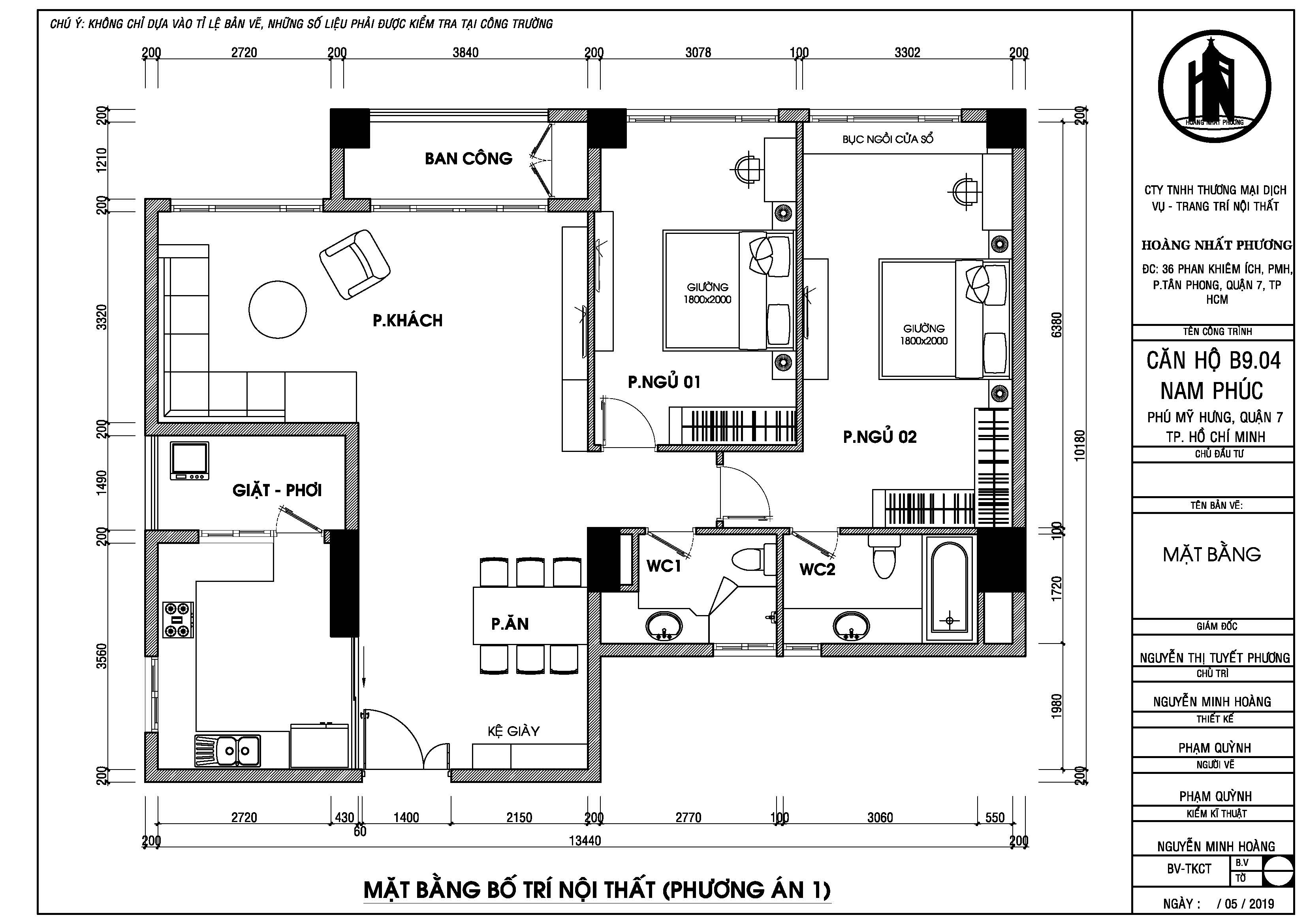
Thiết kế căn hộ bao gồm: 2 phòng ngủ, 2 phòng WC, 1 phòng khách, 1 phòng ăn, bếp, nơi giặt phơi đồ, ban công, cùng 1 số tiện ích khác.
Dưới bàn tay vàng của đội ngũ kỹ sư thiết kế nội thất Hoàng Nhất Phương, căn hộ này được sắp xếp một cách khoa học và đảm bảo tính thẩm mỹ. Từ việc bố trí cho đến sắc màu được lựa chọn một cách kỹ lưỡng. Cùng điểm qua từng không gian bên dưới nhé!
Dưới đây là một số hình ảnh nội thất căn hộ:
- Thiết kế nội thất nhà đẹp thì phòng khách là điểm chú ý nhiều nhất vì mọi khách đến nhà đều sẽ vào phòng khách đầu tiên. Chính vì thế, chúng tôi đã tạo nên sự khác biệt cho không gian này. Các sản phẩm phục vụ nhu cầu người tiêu dùng được bố trí một cách khoa học, tiện nghi và hiện đại.
- Thiết kế nội thất phòng khách với tông nâu sang trọng kết hợp cùng màu xám - là màu đang được các chủ nhà đeo đuổi vì đây là màu của sự sang chảnh, màu sắc không tươi vui mà khá trầm, nên sẽ phù hợp cho những vị chủ nhà yêu thích không gian sang trọng, vì thế màu xám là màu thích hợp để làm điểm nhấn cho toàn cục không gian tiếp khách.
- Thiết kế nội thất phòng khách sử dụng vật liệu gỗ và gạch đan xen, kết hợp thêm đèn hắt tạo điểm nhấn cho cả không gian ấm áp và sang trọng.





Thiết kế nội thất nhà bếp và phòng ăn sử dụng 2 màu chính là trắng và xanh xám. Thiết kế tủ bếp hợp lý sự dụng màu xám xanh phần tủ bếp dưới tạo sự sạch sẽ và phần tủ bếp trên là tông trắng. Pha trộn chính giữa là mặt đá bếp đá hoa cương trắng. Nhìn tổng thể thiết kế nhà bếp vừa đem lại sự hiện đại vừa giữ không gian bếp sạch sẽ.





Thiết kế nội thất Căn hộ Nam Phúc Le Jardin - phòng ngủ
- Căn hộ được trang bị 2 phòng ngủ tiện nghi, chắc chắn sẽ mang đến cho gia đình bạn một tổ ấm trọn vẹn nhất có thể.
- Thiết kế nội thất phòng ngủ 1 theo phong cách hiện đại, rộng rãi với gam màu xám xanh và trắng sang trọng. Các vị trí tủ áo chữ L có kiếng nhìn xuyên suốt, tủ bàn phấn treo tận dụng góc tường làm thêm kệ phụ kiện, tranh trang trí đầu giường, sofa con sát cửa sổ, tất cả đều phối hợp ăn ý mang đến không gian phòng ngủ ấm cúng và thời thượng


Thiết kế nội thất phòng ngủ số 2 cũng theo phong cách hiện đại. Không gian tuy nhỏ nhưng phòng ngủ 2 được thiết kế nội thất bố trí rất ấm cúng và tiện nghi, tận dụng hết không gian tường để thiết kế phức hợp đầy đủ nội thất như giường, tủ đầu giường và tủ kệ tivi



Thiết kế nội thất Căn hộ Nam Phúc Le Jardin - WC
Căn hộ được bố trí 2 nhà WC, điều này giúp bạn thuận tiện trong sinh hoạt gia đình. Với không gian nhỏ nhưng tiện nghi nhà tắm được bố trí theo 2 phong cách, 1 wc được trang bị phòng tắm đứng, cái còn lại là phòng tắm nằm, bạn tha hồ sinh hoạt mà chẳng phải sợ thiếu.




Đó là toàn bộ thông tin cũng như hình ảnh cụ thể về Thiết kế nội thất Căn hộ Nam Phúc Le Jardin. Nếu quý khách hàng cần tư vấn hay muốn biết giá cụ thể về thiết kế nội thất thì hãy để Hoàng Nhất Phương giúp bạn.
MIỄN 100% CHI PHÍ THIẾT KẾ NỘI THẤT CĂN HỘ
Hotline: 0902 71 5858