
Thiết kế nội thất chung cư đẹp không những mang đến kiến trúc không gian sang trọng, thể hiện đẳng cấp cho gia chủ mà còn giúp tâm trạng vui vẻ hơn sống trong một không gian mình yêu thích. Với ý tưởng thiết kế nội thất căn hộ Hưng Phúc Happy Residence này chắc chắn sẽ làm hài lòng vị khách yêu thích sự đơn giản, thanh tao và nhã nhặn. Đội ngũ kỹ sư nội thất Hoàng Nhất Phương đã nghiên cứu cẩn thận, tỉ mỉ từng chi tiết để mang đến căn hộ hoàn hảo nhất. Cùng tham khảo chi tiết bên dưới nhé!

Vị trí căn hộ: Hưng Phúc - Happy Residence thuộc khu Đô thị Phú Mỹ Hưng, Phường Tân Phú, Quận 7, TP.HCM.
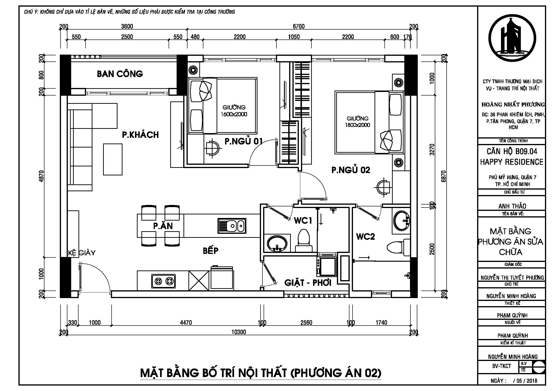
Thiết kế căn hộ bao gồm: 2 phòng ngủ, 2 phòng WC, 1 phòng khách, 1 phòng ăn, bếp, nơi giặt phơi đồ, ban công, cùng 1 số tiện ích khác.
Dưới bàn tay vàng của đội ngũ kỹ sư thiết kế nội thất Hoàng Nhất Phương, căn hộ này được sắp xếp một cách khoa học và đảm bảo tính thẩm mỹ. Từ việc bố trí cho đến sắc màu được lựa chọn một cách kỹ lưỡng. Cùng điểm qua từng không gian bên dưới nhé!
Dưới đây là một số hình ảnh nội thất căn hộ:
- Thiết kế nội thất nhà đẹp thì phòng khách là điểm chú ý nhiều nhất vì mọi khách đến nhà đều sẽ vào phòng khách đầu tiên. Chính vì thế, chúng tôi đã tạo nên sự khác biệt cho không gian này. Các sản phẩm phục vụ nhu cầu người tiêu dùng được bố trí một cách khoa học, tiện nghi và hiện đại.



- Thiết kế nội thất phòng khách với tông trắng thời thượng kết hợp cùng Màu xám xanh - là màu đang được các chủ nhà đeo đuổi vì đây là màu của sự sang chảnh, màu sắc không tươi vui mà khá trầm, nên sẽ phù hợp cho những vị chủ nhà yêu thích không gian sang trọng, vì thế màu xám xanh là màu thích hợp để làm điểm nhấn cho toàn cục không gian tiếp khách.
- Thiết kế nội thất phòng khách sử dụng vật liệu kiếng cường lực xám giúp không gian trở nên nhã nhặn. Bộ tủ tivi và ghế sofa đi cùng tông xám xanh trên nền tường trắng làm cho không gian phòng khách bừng sáng.
Thiết kế nội thất nhà bếp và phòng ăn sử dụng 3 màu chính là trắng, xanh xám và đen. Thiết kế tủ bếp hợp lý sự dụng màu xám xanh phần tủ bếp dưới tạo sự sạch sẽ và phần tủ bếp trên là tông trắng. Pha trộn chính giữa là mặt đá bếp đá hoa cương đen. Nhìn tổng thể thiết kế nhà bếp vừa đem lại sự hiện đại vừa giữ không gian bếp sạch sẽ.



Thiết kế nội thất Căn hộ Hưng Phúc Happy Residence -phòng ngủ
- Căn hộ được trang bị 2 phòng ngủ tiện nghi, chắc chắn sẽ mang đến cho gia đình bạn một tổ ấm trọn vẹn nhất có thể.
- Thiết kế nội thất phòng ngủ 1 theo phong cách hiện đại với gam màu xám xanh sang trọng. Vách đầu giường được cách điệu giữa kiếng đen và kiếng mờ, sự kết hợp mới lạ mang đến không gian phòng ngủ thời thượng. Dán sàn được dùng tông xám giúp căn phòng tông xuỵt tông ấm áp



Thiết kế nội thất phòng ngủ số 2 cũng theo phong cách hiện đại. Không gian tuy nhỏ nhưng phòng ngủ 2 được thiết kế nội thất bố trí rất ấm cúng và tiện nghi, tận dụng hết không gian tường để thiết kế phức hợp đầy đủ nội thất như giường, tủ đầu giường, bàn học, tủ kệ tivi, tủ áo....



Thiết kế nội thất Căn hộ Hưng Phúc Happy Residence - WC
Căn hộ được bố trí 2 nhà WC, điều này giúp bạn thuận tiện trong sinh hoạt gia đình. Với không gian nhỏ nhưng tiện nghi nhà tắm được bố trí đầy đủ, bạn tha hồ sinh hoạt mà chẳng phải sợ thiếu.


Đó là toàn bộ thông tin cũng như hình ảnh cụ thể về Thiết kế nội thất Căn hộ Hưng Phúc Happy Residence. Nếu quý khách hàng cần tư vấn hay muốn biết giá cụ thể về thiết kế nội thất thì hãy để Hoàng Nhất Phương giúp bạn.
MIỄN 100% CHI PHÍ THIẾT KẾ NỘI THẤT CĂN HỘ
Hotline: 0902 71 5858