 
					 
					 
					 
					 
					 
					 
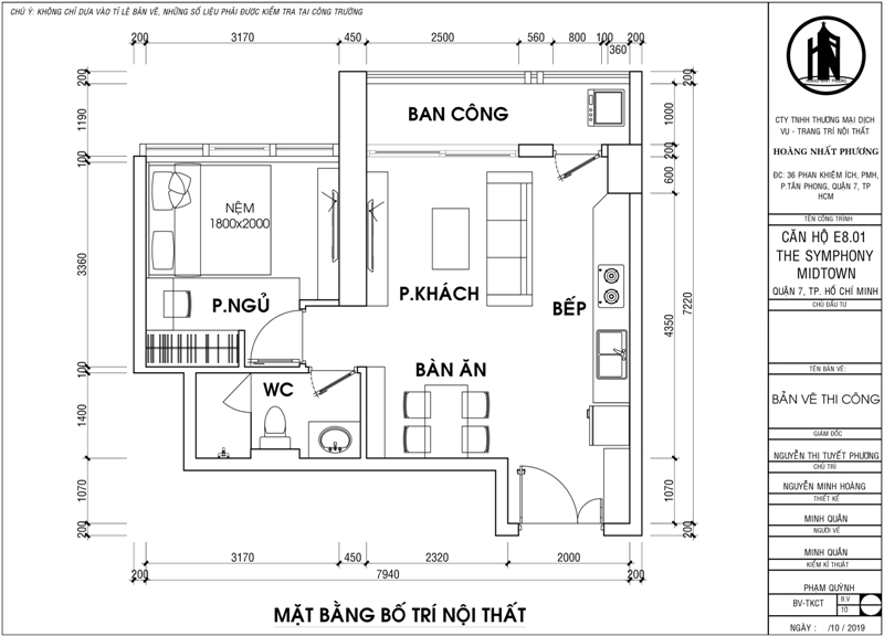
					Thiết kế căn hộ bao gồm: phòng ngủ, phòng WC, phòng khách, phòng ăn, bếp, nơi giặt phơi đồ, và ban công
Dưới bàn tay vàng của đội ngũ kỹ sư thiết kế nội thất Hoàng Nhất Phương, căn hộ này được sắp xếp một cách khoa học và đảm bảo tính thẩm mỹ. Từ việc bố trí cho đến sắc màu được lựa chọn một cách kỹ lưỡng. Cùng điểm qua từng không gian bên dưới nhé!
Dưới đây là một số hình ảnh nội thất căn hộ:

- Thiết kế nội thất phòng khách được bố trí đối diện bếp, vách tivi được thiết kế hiện đại sử dụng gỗ bóng kiếng lạ mắt và dễ lau chùi, kệ tivi được treo lơ lững vừa rộng rãi lối đi lại dễ quét dọn. Vách treo tivi được phá cách với hộp đèn bên trong làm điểm nhấn cho không gian tường. Phòng khách bước ra là ban công với cửa ra vào full kiếng hứng trọn ánh sáng và gió vào nhà


- Thiết kế nội thất nhà bếp đơn giản 2 tầng đầy đủ phục vụ nhu cầu nấu nướng. Thiết kế nội thất bếp hình chữ I vật liệu gỗ bóng kiếng và mặt đá trắng, bếp được chia làm 2 tầng tiết kiệm không gian. Phần dưới được bố trí lò nướng điện âm, bồn rửa chén, và tủ l. Phần trên là 1 dàn tủ treo dùng dể đựng chén bát và vật dụng cần thiết

- Tủ giày nhỏ được bố trí sát cửa ra vào và liền kế với bếp, vừa gọn gàng vừa đẹp mắt

- Bộ bàn ăn 4 ghế được đặt đối diện bếp, trang trí bởi vách kiếng đen sang trọng và sạch sẽ

- Thiết kế nội thất phòng ngủ theo phong cách hiện đại với tông màu gỗ mạnh mẽ. Tuy không gian căn hộ nhỏ nhưng bố trí được 2 bộ tủ đó là bộ tủ áo âm tường cửa lùa đụng trần và bộ tủ âm bên dưới giường đựng vật dụng. Bàn trang điểm tuy nhỏ nhưng vẫn đầy đủ gương và hộp kéo tủ, phía dưới là ghế trang điểm có thể di chuyển ra vào dễ dàng. Kệ tivi gồm tường dưới treo tường rộng lối đi và kệ trên dùng trang trí. Giường ngủ được kê sát cửa sổ để ngắm trọn khuôn viên bên dưới




Đó là toàn bộ thông tin cũng như hình ảnh cụ thể về Thiết kế nội thất Căn hộ Vinhomes Golden River Quận 1 . Nếu quý khách hàng cần tư vấn hay muốn biết giá cụ thể về thiết kế nội thất thì hãy để Hoàng Nhất Phương giúp bạn.
MIỄN 100% CHI PHÍ THIẾT KẾ 3D NỘI THẤT CĂN HỘ
Hotline: 0902 71 5858